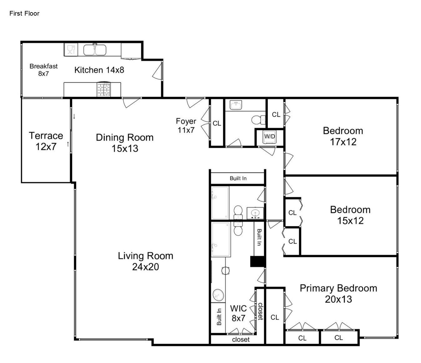
1300 North Lake Shore Drive, Unit 15D, Chicago, IL - Floorplan
1300 North Lake Shore Drive, Unit 15D, Chicago, IL - Floorplan